
Een gestripte en heringerichte woonlaag/Stripped back and redefined living level
Project: Verbouwing woonverdieping
Location: Amsterdam
Status: Built
During the renovation of a 1930s apartment spanning two floors and featuring a rooftop terrace, the main living level was completely stripped back to its structural core. The new spatial layout was guided by the ambition to create maximum openness, natural light, and a seamless transition between rooms. At the same time, the flexibility to separate spaces was preserved through the use of integrated sliding and pivot doors. A sense of calm and cohesion was enhanced by subtly concealing functional elements — such as storage units, sanitary facilities, and technical spaces — behind custom-designed wall panels. Material consistency forms the backbone of the architectural concept: the kitchen fronts are crafted from the same material as the doors and cabinetry in the study and laundry area. The timber that defines the entrance core reappears in the study, while the tiles in the WC echo the shape and rhythm of those in the kitchen. Together, these elements establish a quiet harmony throughout the interior.
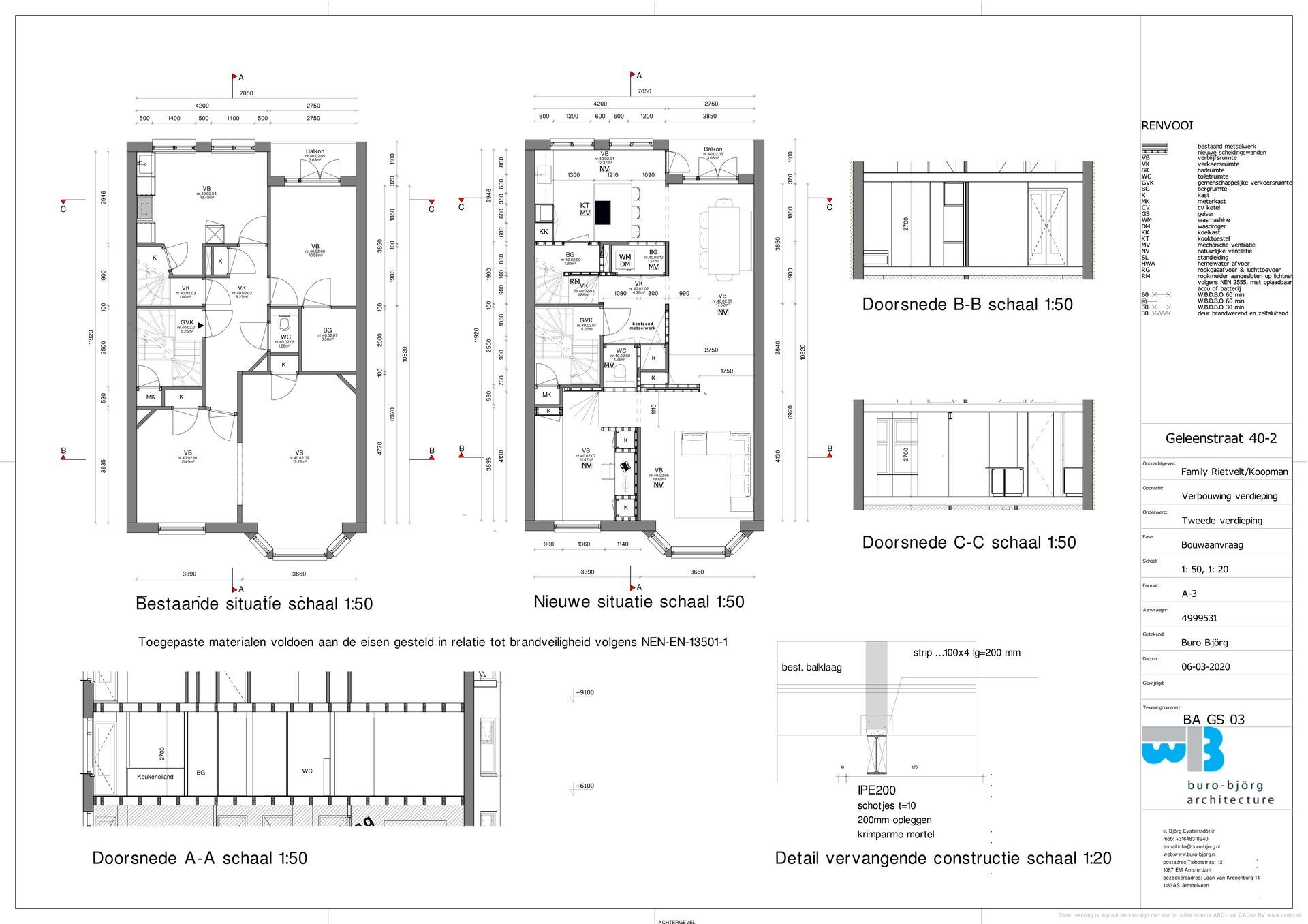
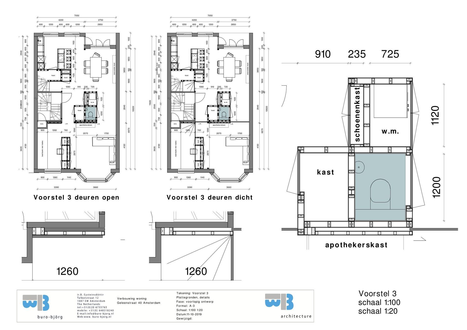
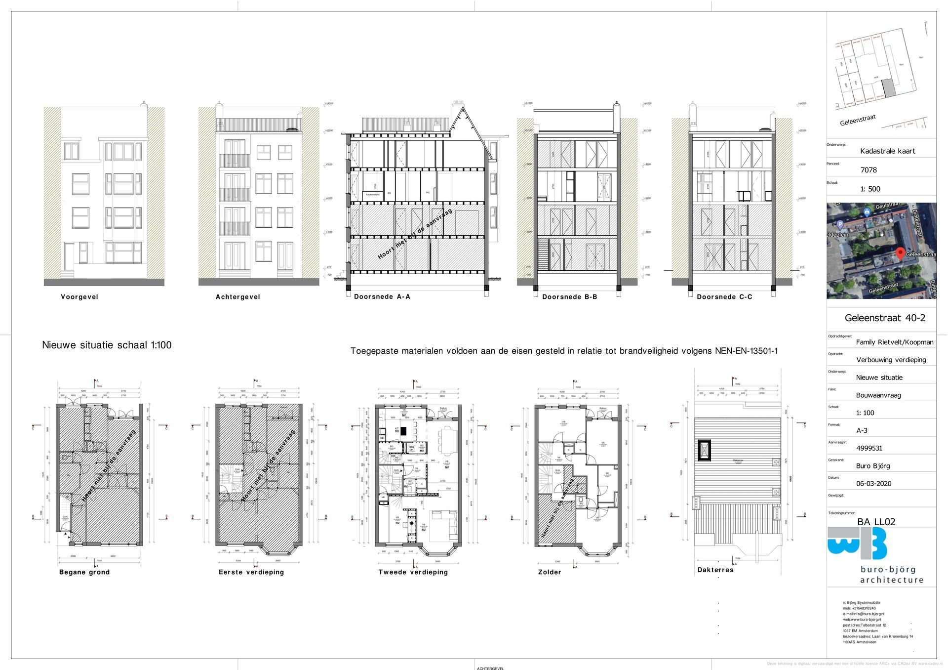
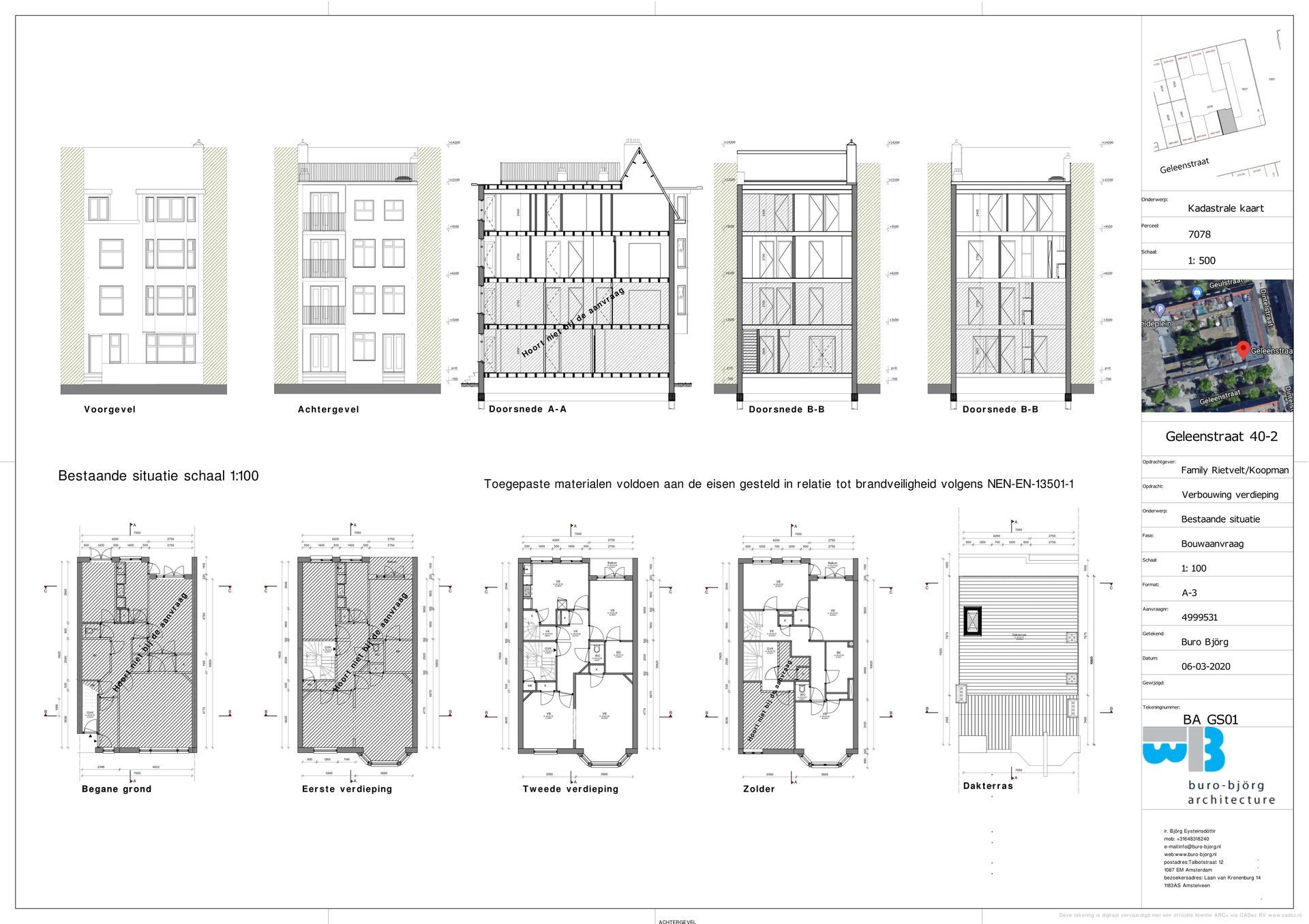
Bij de verbouwing van een jaren 30 appartement met twee verdiepingen en een dakterras werd de woonlaag volledig gestript.
Het uitgangspunt voor de nieuwe indeling was het creëren van maximale openheid, licht en een vloeiende overgang tussen de verschillende ruimtes. Tegelijkertijd bleef de mogelijkheid behouden om ruimtes van elkaar af te sluiten, door het toepassen van geïntegreerde schuif- en taatsdeuren. Een gevoel van rust en samenhang werd versterkt door functionele elementen — zoals opbergkasten, sanitaire voorzieningen en technische ruimtes — subtiel te verbergen achter op maat ontworpen wandpanelen. Materiaalconsistentie vormt de rode draad in het architectonisch concept: de fronten van de keuken zijn vervaardigd uit hetzelfde materiaal als de deuren en kasten in de werkkamer en wasruimte. Het hout dat de kern van de entree definieert, keert terug in de werkkamer, terwijl de tegels in het toilet qua vormgeving aansluiten bij die in de keuken. Zo ontstaat er harmonie en balans in het interieur.


































