
Eigentijdse uitbouw/Modern extension
Project: Renovatie en uitbouw/ Renovation and extension
Collaborators: Tamara Colette
Location: Deventer
Status: Built
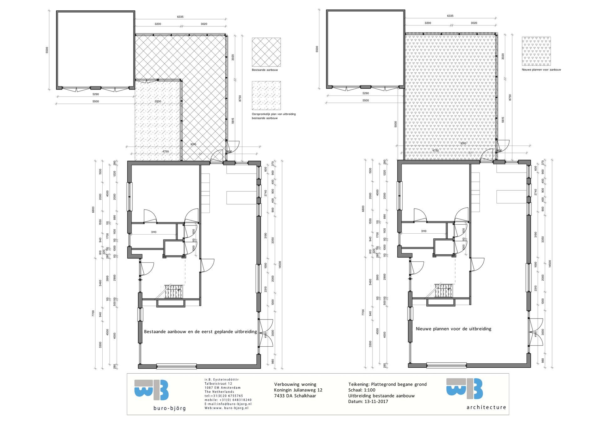
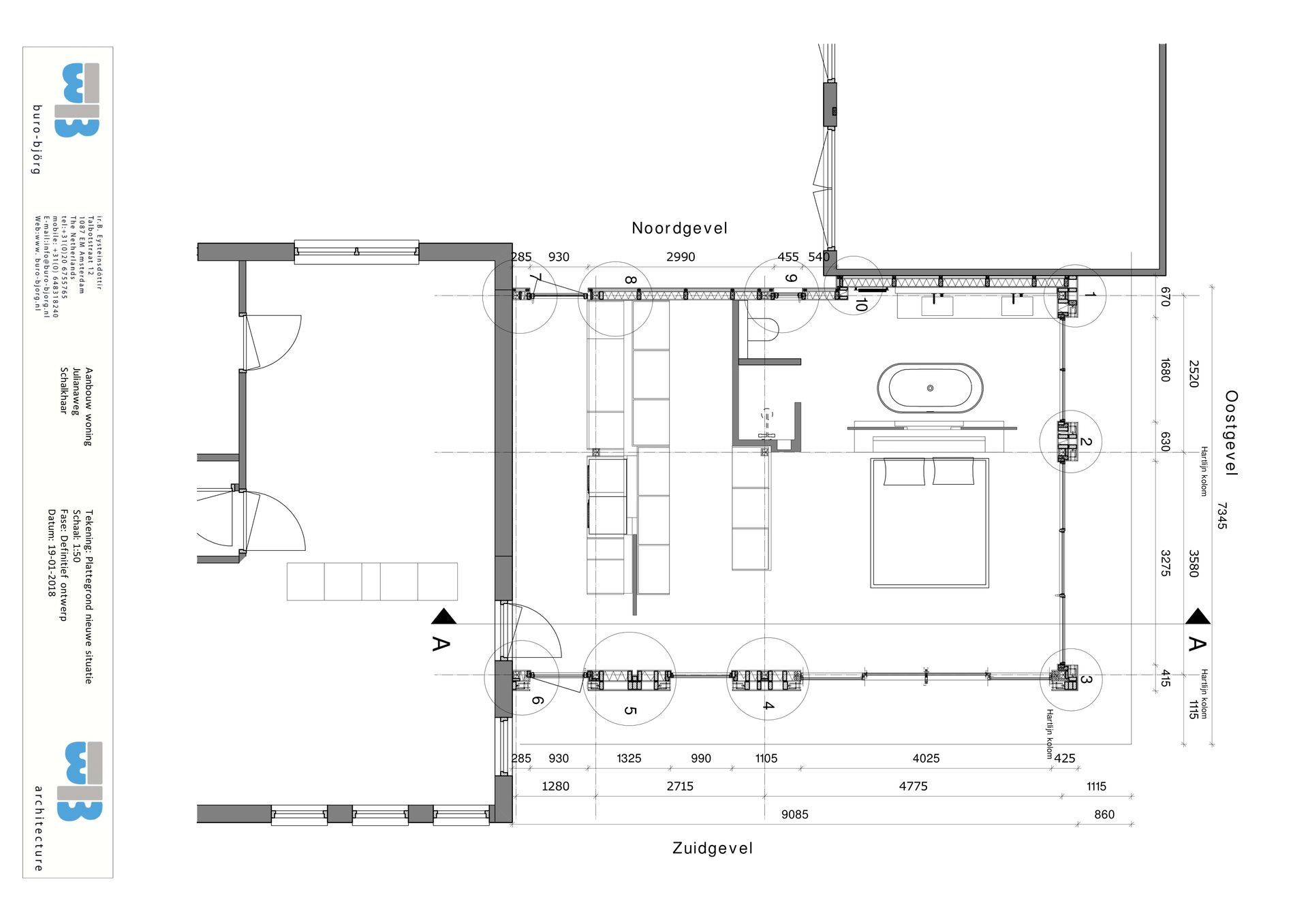
Bij deze renovatie van de villa is gekozen voor een moderne, met zorg gedetailleerde, uitbreiding met een slaapkamer, badkamer en inloopkast. De uitbouw is verbonden met het bestaande huis via een lichtstraat, die niet alleen zorgt voor daglicht, maar ook functioneert als een directe doorgang van de parkeerplaats naar de keuken en de tuin. In de lichtstraat zijn inbouwkasten geïntegreerd, wat zorgt voor extra functionaliteit zonder het strakke ontwerp te verstoren. Dankzij grote raampartijen en lange zichtlijnen is de omliggende tuin overal voelbaar en zichtbaar. Zowel het plafond als de vloer lopen door naar buiten, waardoor een beschutte overgangszone ontstaat tussen interieur en exterieur. De meter brede overstek is voorzien van geïntegreerde buitenlamellen en subtiele buitenverlichting, wat zorgt voor schaduw, privacy en een intieme sfeer.
As part of the renovation of this villa, a modern and meticulously detailed extension was added, comprising a bedroom, bathroom, and walk-in closet. The new wing is seamlessly connected to the existing house via a skylit corridor, which not only brings in natural daylight but also serves as a direct passage from the parking area to the kitchen and garden.
Built-in cabinets have been integrated into the corridor, offering additional functionality without disrupting the clean and minimalist design. Thanks to expansive windows and extended sightlines, the surrounding garden remains visible and tangible throughout the interior, creating a constant connection with the outdoors.
Both the ceiling and flooring continue beyond the façade, forming a sheltered transitional zone between indoor and outdoor living. A one-meter-wide overhang, equipped with integrated exterior louvers and subtle outdoor lighting, provides shade, privacy, and an intimate ambiance.




















