Aanbouw weesp

Ruime uitbouw in de stad/ Spacious extension in the city
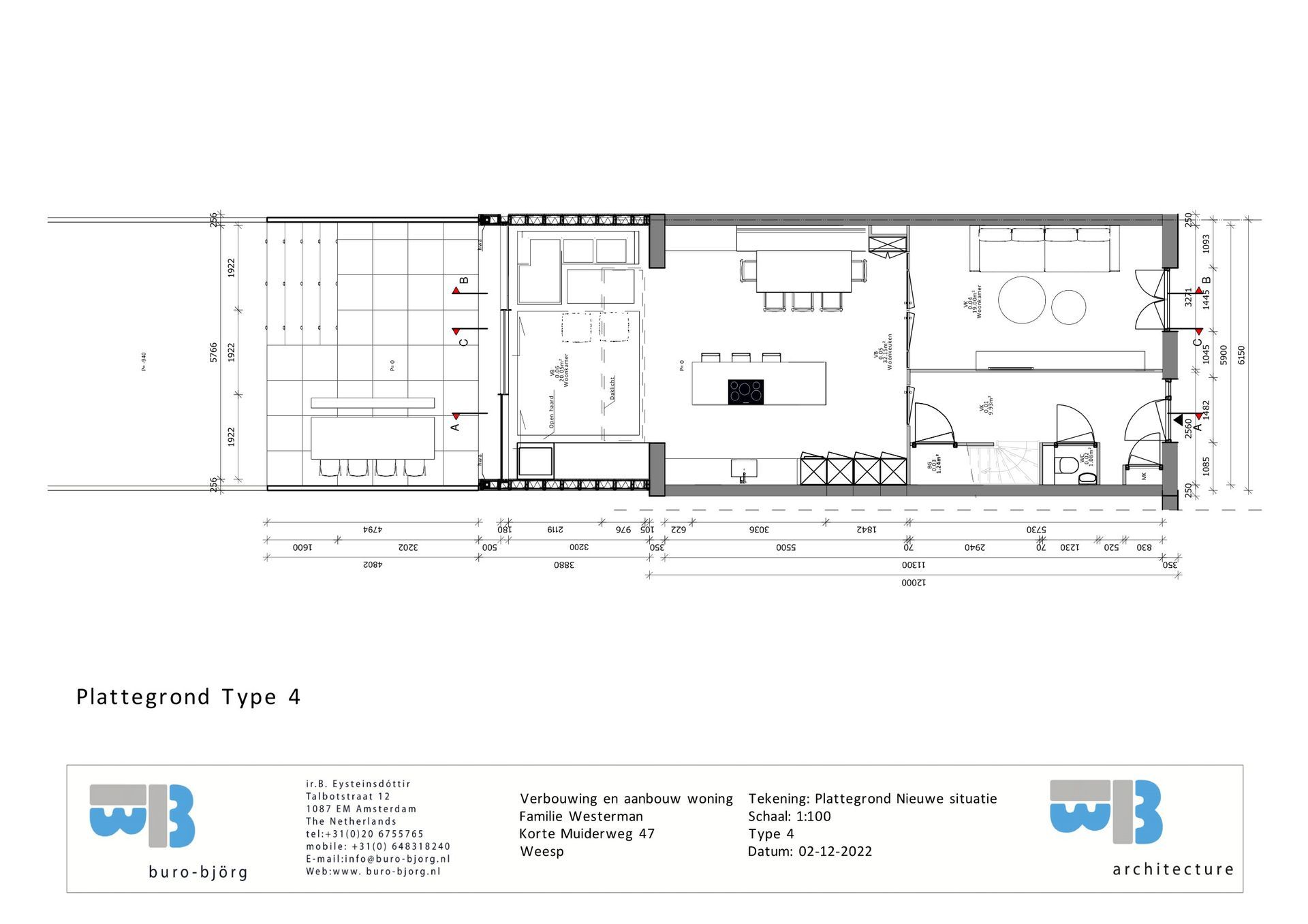
Project: Renovatie en aanbouw eengezinswoning
Location: Korte Muidenweg, Weesp
Status: Built
De vier meter diepe uitbouw kreeg een split-level uitvoering, met een vloer die 36 cm lager ligt dan de oorspronkelijke leefruimte. en zo een ruimtelijk effect creëert. Verdiepingshoge stalen schuifdeuren openen de gevel naar terras en tuin, terwijl een brede lichtstraat voor veel daglicht zorgt.
Stalen glasdeuren zorgen voor een visuele verbinding tussen de woonkeuken, woonkamer en entree.
The four-meter-deep extension was designed with a split-level layout, featuring a floor that lies 36 cm lower than the original living space, creating a spacious effect. Full-height steel sliding doors open the façade to the terrace and garden, while a wide skylight brings in abundant daylight.
Steel and glass doors provide a visual connection between the kitchen, living room, and entrance.



































