
Een stijlvolle transformatie/ A stylish transformation
Project: Renovatie begane grond/Renovation groundfloor
Location: Leimuiden
Status: Built
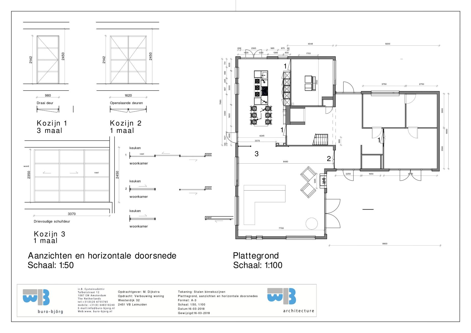
De begane grond van deze riante villa is grondig gerenoveerd. De gesloten kamers maakten plaats voor een open indeling, waarbij stijlvolle stalen en glazen deuren de verschillende ruimtes met elkaar verbinden. Het resultaat is een lichte, elegante woonlaag waarin de vertrekken naadloos in elkaar overlopen.
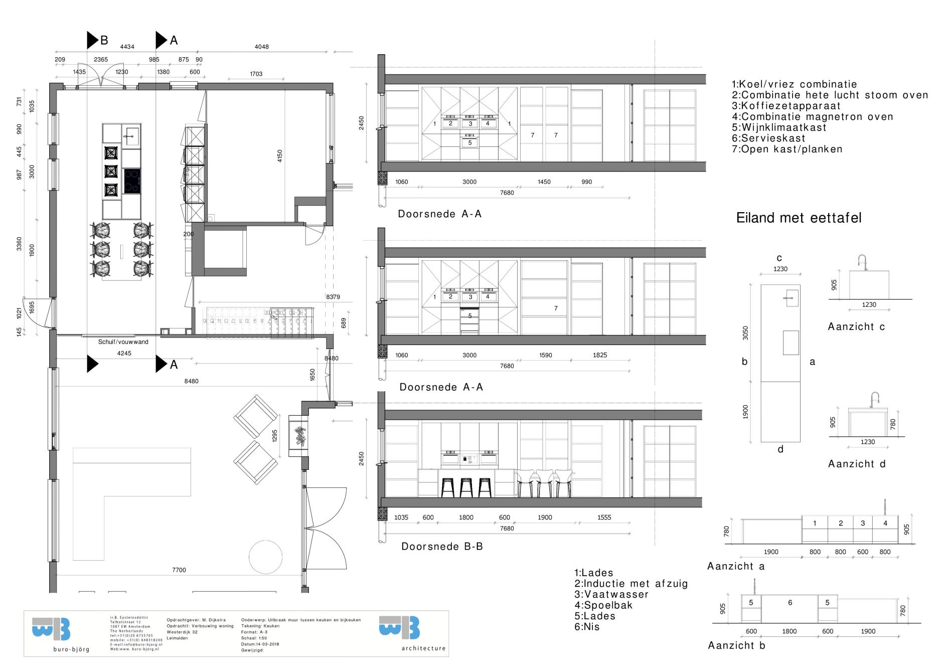
De verouderde keuken is vervangen door een moderne, hoogwaardige uitvoering en ook de woonkamer kreeg een nieuwe, luxe vloer. Daarnaast zijn alle wanden strak gestukt en geverfd, waardoor de villa een frisse en tijdloze uitstraling heeft gekregen.
The ground floor of this spacious villa has been thoroughly renovated. The closed-off rooms have been replaced by an open layout, with stylish steel and glass doors connecting the different areas. The result is a bright, elegant living space where the rooms flow seamlessly into one another.
The outdated kitchen has been replaced with a modern, high-quality design, and the living room now features a new, luxurious floor. In addition, all walls have been smoothly plastered and painted, giving the villa a fresh and timeless appearance.



















